Excel Design Services

From first ideas to final delivery, our design experts help you picture every detail — so your home feels right before it’s even built.

See your space before it's built. Design that puts you in control.

At Excel Home Design, we believe great spaces begin with great design — and that the design process should feel just as exciting as the final result.

Our comprehensive in-house design service is where your project comes to life. Whether you're planning a new kitchen, extension, garden room, or full renovation, we don’t just show you plans — we let you experience your space before it's built.

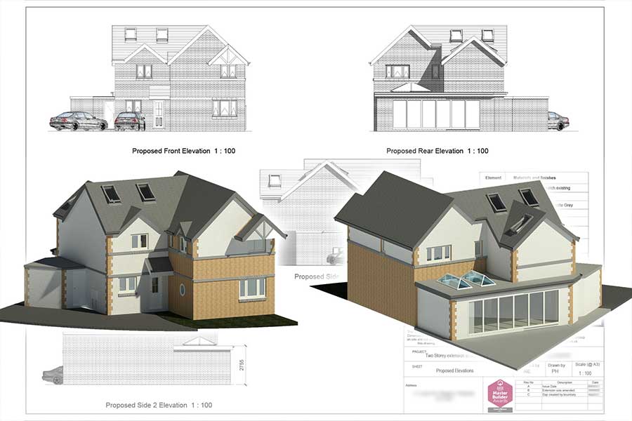
Visualise Every Detail

We combine creative vision with the latest design technology to help you see, explore, and refine your project with confidence. Our process includes:

  • 2D plans to map out the structure and flow
  • 3D models to bring layouts and finishes to life
  • Virtual walk-through videos to guide you through your future space
  • Cutting-edge VR design suite, where you can step inside your design and explore it in full scale before a single brick is laid

This immersive process allows you to fine-tune every feature — from cabinetry layouts to lighting and flooring — all before construction begins. It’s clarity, certainty, and creativity in one seamless experience.

Before After
Excel-Planning-applications

Designed Around You

Our design team works closely with you to shape a space that reflects how you live. Every decision — from layouts and finishes to functionality and atmosphere — is made with your lifestyle in mind.

Because we design, manufacture, and fit everything in-house, you get a coherent, considered result with no compromises. The result isn’t just a beautiful design — it’s a design that works.

Bathroom-Visual

Expertise You Can Trust

With over a decade of experience and a reputation for award-winning delivery, Excel’s design team brings insight, care, and creativity to every project. Whether you have a strong vision or need help exploring ideas, we’re here to guide and inspire you.

Experience Our Design Suite

Visit our new state-of-the-art showroom in Tonyrefail, Rhondda Cynon Taff to try our VR design suite for yourself. We serve customers across South Wales — including Cardiff, the Vale of Glamorgan, the Valleys, and along the M4 corridor from Llanelli to Monmouth.

Design-a-Kitchen
Award icon

Award Winning Quality

Bespoke icon

Completely Bespoke

Britosh Made icon

British Made

Display icon

Displays in Showroom

Start your journey with confidence.

Let’s design your perfect space — with nothing left to guesswork.